Wanneer heeft het Rijk bolwerk Wolvenburg verkocht? Tot wanneer is tijdelijk gebruik mogelijk? Is de gemeente Utrecht betrokken? Het is nu 2025, het tijdpad gaat nog verder.

Wanneer heeft het Rijk bolwerk Wolvenburg verkocht? Tot wanneer is tijdelijk gebruik mogelijk? Is de gemeente Utrecht betrokken? Het is nu 2025, het tijdpad gaat nog verder.

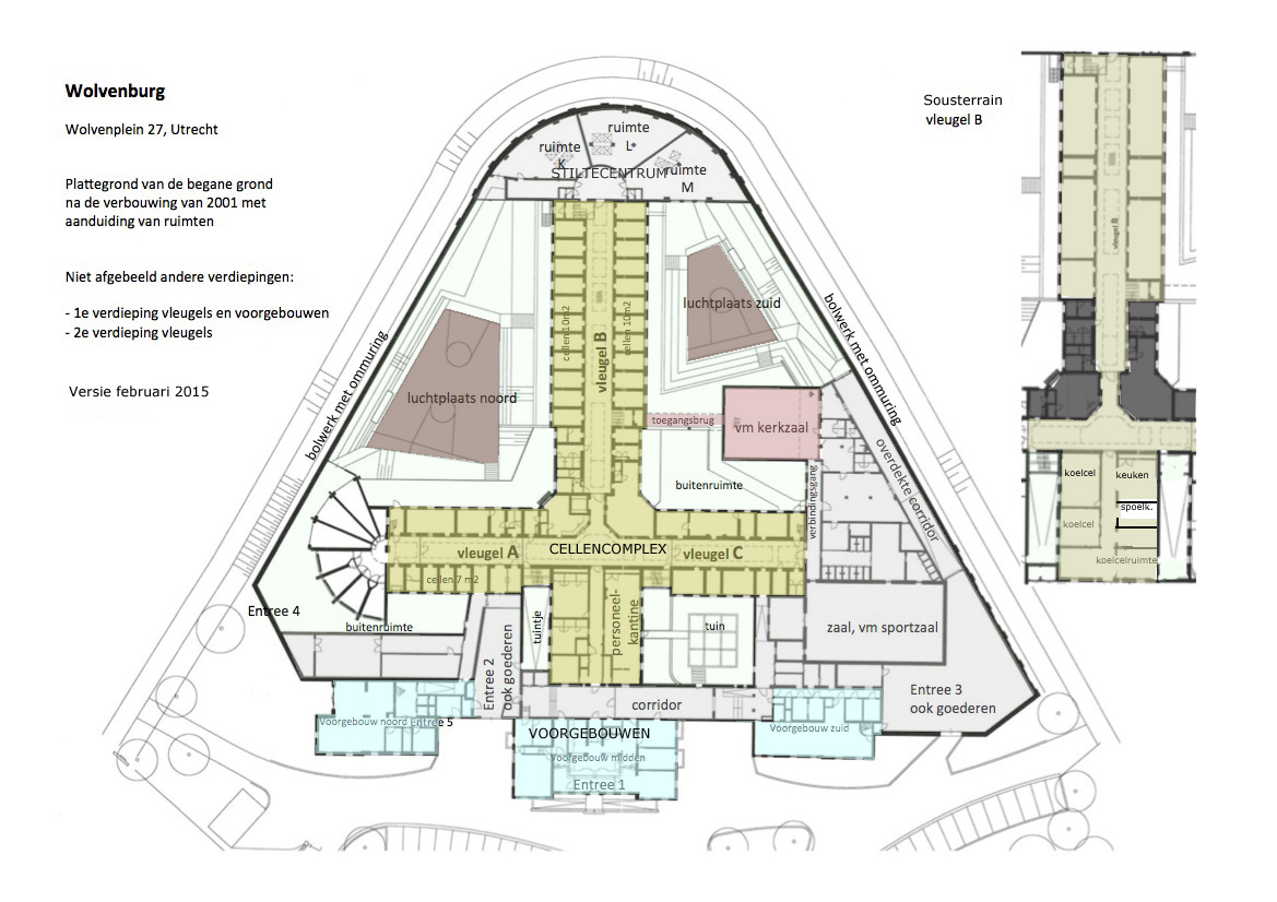
Op bolwerk Wolvenburg zijn de oudste gebouwen van de gevangenis uit 1856. De plattegronden van dit complex zijn in dit artikel als PDF te downloaden.
Lees meer >>De verkoop van PI Wolvenplein is in maart 2020 begonnen. Aanmeldingen met referenties en plannen moeten in oktober binnen zijn. Na selectie volgen in februari de projectvisies van de kandidaten en een bieding in april. In beginsel is 21 juni 2021 de nieuwe eigenaar bekend.

Er zijn minder gedetineerden in gevangenissen, het aantal is nog nooit zo laag geweest als nu. ‘Het mysterie van de verdwenen criminaliteit’ luidt de titel van een in mei 2018 door het CBS uitgekomen onderzoek.

Brochure – Wolvenburg – de toekomst van een bolwerk in Utrecht. Maak kennis met vier zeer uiteenlopende plannen. Download hier de brochure als PDF.

De klankbordgroep is voor de tweede keer bij elkaar geweest. Het Rijksvastgoedbedrijf en de gemeente waren dit keer de klankbordgroep. Gaan ze iets doen met de keuzes van Stadsdorp Wolvenburg?
Lees meer >>Bij het herontwikkelen van monumenten, is het van groot belang om vast te leggen wat de (monumentale) waarden zijn. Dat is bij de oudste cellulaire gevangenis van Nederland (Weteringschans Amsterdam) niet gebeurd. Bij andere gevangenissen is dat beter gelukt. In dit artikel worden enkele voorbeelden gegeven van herbestemde gevangeniscomplexen.
Lees meer >>Onder welke voorwaarden komt bolwerk Wolvenburg te koop? Dat is de vraag die het Rijksvastgoedbedrijf en de gemeente Utrecht kunnen stellen in een marktconsultatie. En dat om de verkoop van het bolwerk af te stemmen op de belangstelling in de markt.
Lees meer >>Het Rijksvastgoedbedrijf gooit het roer om bij de verkoop van ruim 330 rijkspanden. Topman Jaap Uijlenbroek van het Rijksvastgoedbedrijf presenteert op de vastgoedbeurs Provada de nieuwe Afstootstrategie. In een artikel in het blad ‘De Architect’ van 12 mei 2015 wordt er verslag van gedaan.
Hieronder staat een selectie uit twee artikelen. De tekst en foto is van Ingrid Koenen.
Gevangenis Wolvenplein behoort tot de verzameling van door het Rijk af te stoten vastgoed. Het Rijk heeft op dat gebied een grotere opgave. Vier verschillende overheidsafdelingen voor vastgoed zijn in 2014 ondergebracht in het Rijksvastgoedbedrijf (RVB).
Lees meer >>