Op bolwerk Wolvenburg zijn de oudste gebouwen van de gevangenis uit 1856. De plattegronden van dit complex zijn in dit artikel als PDF te downloaden.
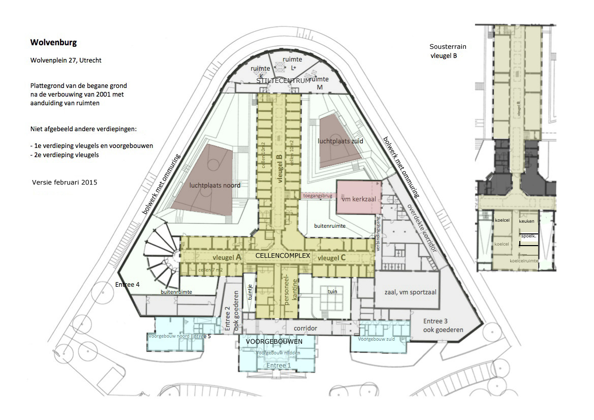
Het gebouw is kruisvormig van opzet met drie vleugels met elk drie etages en een deel met een souterrain. De begane grond van de westvleugel bood ruimte aan de binnenkomstafdeling delinquenten (BAD incl. een echte badruimte) en aan drie isolatiecellen met daarbij horende afzonderlijke luchtplaatsen (de drie zijn Rijksmonumentaal).
De cellen waren bestemd voor eenpersoonsgebruik. De voorzijde van het gebouw was ingericht als kantoorruimte voor niet executief personeel, tot 1986 waren dit woningen voor personeel. In het souterrain is de keuken met koelcellen en zijn tot werkzalen en een opleidingsruimte omgebouwde voormalige cellen. De PI Wolvenplein beschikt over twee luchtplaatsen, een sportzaal en een kleine fitnessruimte. Er waren 124 plaatsen voor gedetineerden.
In 1875 werd de lange vleugel gerealiseerd, de kerk is uit 1903 en de sportzaal uit 1977. En zo is in de loop der jaren een complex ontstaan met aanbouwen, verbouwingen, herbestemde cellen etc.
De gevangenis is in 2001 compleet vernieuwd. Het complex bestaat uit vele gebouwdelen en telt een aantal verdiepingen. Onderstaande plattegronden zijn te downloaden en vrij voor gebruik.
Algemeen 2015 – plattegrond PI Wolvenplein SW2.pdf
Souterrain – plattegrond PI Wolvenplein SW -1v0.1.pdf
Begane Grond – plattegrond PI Wolvenplein SW 0 – v0.1.pdf







